新築・戸建て住宅設計
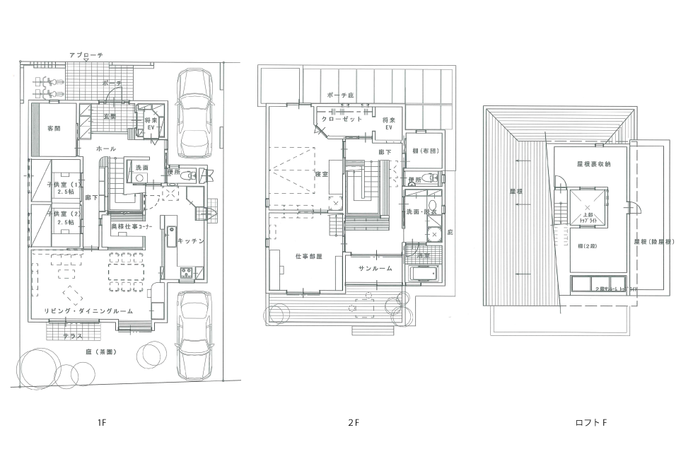
対面式のキッチンと天窓のある住まい N邸


Nさん家族は高校生の息子さん2人の4人家族。
設計の最初から家づくりの明確な主張を持つておられました。
リビングを中心に家族の気配が分かり会話がはずむ家という構想のもと、
・ご主人の仕事場を併設する。
・奥様の仕事場(家事スペース)をキツチン、リビングの近くにつくる。
・子供部屋は一人2帖程度とし、立体的につくる。
・加齢対応を考え将来エレベータが設置出来るようにする。
などが提示されました。
設計プランは、階段回りを回れる回遊性を持たせることによつて、家族の気配を感じ、直方体の家でありながら、空間の変化と明るく楽しい家になりました。
■敷地49.70坪、延床面積49.54坪
家族構成 夫婦 + 高校生(男2人)
照明の効果を大切にした「夜の時間」を楽しむ家
照明の効果を大切にした「夜の時間」を楽しむ家お互いに仕事を持つ夫婦が、帰宅後ゆったりくつろげるように、リビングルームの照明計画を考えた住まいです。間接光が光と影を生み出しています。 東京の住宅地に建て替えで計画された、1階にお母様、2階に夫婦が暮らす二世帯住宅です。 ご夫婦とも仕事を持っているため、2人がそろう夜の時間を大切にする照明計画が考えられました。天井に直付けの光源を付けず、ダウンライトを使ったり、壁面やトッブライト部に間接照明を組み込むことで、光と影のコントラストをつくり出しています。
住宅関連の仕事をしている住み手のNさんは、規格住宅では土地や環境を生かせないため、建築家に設計を依頼することを当初から考え、こだわり派の上司の住まいを設計したことから依頼がありました。収納スペースをたっぷり確保することで、室内にものを出さない、すっきりとした暮らし方をされてます。
■敷地面積 172.04平米(52.04坪)■延床面積 145.76平米(44.09坪)
家族構成 夫婦 + 祖母 + 愛犬
家の中心に緑のパティオを配し、暮らして楽しい住まい
テレビ朝日の渡辺篤史の「建もの探訪」のS邸を見て、事務所へ思い切って電話したのだという。 「2000万円の予算なので、とにかく不安でした。そのことをお話しすると、"最初から無理と思い込まないで、とにかくどんな家が欲しいのかをすべて伝えてください。予算はそれから工夫しましょう"といわれ、ほっとしたんです」と奥さん。その結果、3階部分は将来子ども部屋にするために、窓や配線だけを準備、階段や内装はあとで施工することになった。「私たちの希望がきちんと、いや想像以上の家として現実のものになりました。
子ども部屋も将来の楽しみですね」とご主人。若い夫婦の感性で、S邸とは異なる、みずみずしさを感じさせる住まいになりました。冬は暖房もいらず、光と風がいっぱいの住まいです。
.
■敷地面積 95.81平米(28.58坪)■延床面積 85.52平米(25.87坪)
シンプルモダンと和のテイストが美しく融合した孟宗竹のある中庭の住まい R邸
この住まいは、以前テレビ朝日「渡邉篤 住まい探訪」で放送された「中庭の家」を見て、また、私の著書「子どもをゆがめる間取り」(情報センター出版)を読んでの設計依頼でした。
リビングルームと子ども部屋、リビングルームと中庭など、中庭を中心に全ての部屋が面していて、家族の一体感や絆がつよくなる設計です。特にロフトの子ども部屋の窓を開くと、リビングの空間と一体になり楽しさとともに親子の会話が生まれるという嬉しい感想をいただいています。
完成後、雑誌クロワッサンに「親子のコミュニケーションが生まれる家」として紹介されました。
■敷地面積 173.55平米(52.49坪)■延床面積 165.25平米(49.98坪)。
全ての部屋から海が見える3世帯の家(準備中)
小田原市の山の中腹に位置するM邸は、海が正面に見え素晴しいロケーションです。小田原駅ホームから山脈にこの敷地を見たとき、水平ラインを強調する建物にしようと思いました。
三世代が住む計画のM邸は、玄関ホールを中心に東側が子世帯、西側が親世帯とし、全ての部屋から海が見えるよう計画しています。また敷地内の高低差が2.3mでしたが、土地の形状に建物を合せるような平面計画を立て、玄関が2階のレベルから入る住まいになりましたが、その結果変化に富んだ楽しい住まいになりそうです。
山形県の景観賞を受賞した大屋根の家。
酪農を家族三世代で営む家族。
冬の寒さが厳しく雪が1メートル以上も積もりますが、大きな吹抜けがあっても、薪ストーブがすべての部屋を暖めてくれて快適です。
材料には裏山のカラマツ、杉材をふんだんに使い、山の香りをのせた爽快な風が吹き抜ける、自然志向の住まいです。
30坪に満たない狭小住宅でも優雅に楽しめる中庭プラン S邸
「庭が欲しい」都会に住む人も、いや都会に住む人だからこそ、自分の家に木や土といった自然の安らぎを求めてしまうものです。
しかし、満足できる庭の広さを確保するのはなかなか難しいものです。ましてや30坪に満たぬ狭小住宅であればなおさらのこと。でも、その間題をユニークなアイデアで克服したのがこのSさんのお宅です。道路に面したお宅で、通常の庭をつくるのが難しかったのです。そこで考えたのが、インドアガーデンともいうべき中庭のある家でした。真ん中に庭を設けて、それを中心に家の構造を考えたのです。中庭といっても、Sさんのお宅の場合、通常の庭とは少し異なります。鉢植えや観葉植物のたぐいが所狭しと置いてあるわけではありません。玄関から入ると目に入るのが青竹。吹抜けになった3階まで伸びており、4畳半余りの庭とは思えぬ広々とした開放感があります。
タイルを床に敷き詰め、土の部分をあえて最小限に。なのに、鮮烈に「自然」を感じさせてくれます。そして住居部分は、、各階ともこの中庭に視線がいくようなつくり。1階の寝室、2階のリビングルーム、3階の部屋からこの竹が望め、一年を通じて緑が楽しめます。日中はもちろん、ライトアップされる夜も、繊細な光と影の美が堪能できるとか。簡素にすることで、逆に豊かな空間をつくる「引き算の美学」ともいえます。玄関を入ると3屋分の吹抜けと、トップライトから降りそそぐ光の中に竹の林が目に入ります。この竹のあるライトコートの廻りに部屋が並び、どこにいても家族の気配が感じられる住まいです。敷地は26坪ですが、狭さを全く感じさせない光りあふれた住まいになりました。
※S邸は渡辺篤史「建もの探訪」(テレビ朝日)放映されました。
■3階建て住宅■敷地面積 87.96平米(26.60坪)■延床面積 102.70平米(31.06坪)
性格の違った2つの中庭(パティオ)をもつ家
ダイニングに続く開放的なパティオとリビングに面した2つのパティオがある家。
私の著書、「建築家となら望み通りの家が建つ」を読んでの設計依頼でした。
希望は、中庭を中心に豊かな空間を家族と楽しみたい。また加齢対応に備えた住まいが希望要件でした。
完成した住まいは、玄関に入るととても大きな吹き抜けの空間と、中庭が目に飛び込んできます。
リビングとダイニングからは、性格の異なる二つの中庭を同時に見ることが出来、住まいに広がりと陰影を与えています。
ひとつの中庭は、枕木を使いヒメシャラの樹を植え、季節によつて花を植え替えられるようプラントBoxに花を生け込んでいます。
もうひとつの中庭は、スペインのパテイオ風に仕上げ南からの光を浴び、家族でコーヒータイムやアウトドアを楽しんでおられます。間取りはメインの中庭を中心に、一階と二階に回遊性を持たせています。様々な工夫を盛り込んだ住まいは、楽しさと奥行きの深さが感じられ、以前より家族の会話時間も増えたと喜んでおられました。。
また加齢対応に配慮し、将来ホームエレベーターを設置出来るようにしたり、主寝室のすぐ横には仮に車椅子になつても対応できるよう洗面、便器、浴室といつたサニタリー部分をひとつの動線に並べました。



















































































中庭のある家|横山彰...
